|
| 16米跨生产桥 |
[注:所有AotuCAD图纸均可修改编辑及打印出图] |
| 图纸大小:164KB |
图纸格式:dwg |
制作软件:AotuCAD |
| 添加时间:2011年06月27日 |
下载权限:10个图纸币 |
浏览人数:
次 |
|
|
|
 |
|
|
| 图纸简介: |
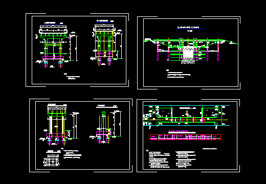
附设计说明:设计标准为汽-20、挂-100、跨径16.0米。生产桥皆采用钢筋混凝土T形截面简支梁桥型,钢筋混凝土灌注桩基础。台帽及前墙兼作挡土墙,其后填10%水泥土,顺桥向,水泥土填筑部分与桥面同宽,两侧设M10水泥砂浆砌块石挡土墙或钢筋混凝土挡土墙与(支)堤衔接,局部以圆弧连接。 |
预览图:[仅是局部效果预览,详细内容及整套图纸请下载附件查看]
|
| 整套图纸下载 [本图为AotuCAD制作/dwg格式] 注:所有dwg格式图纸均可任意放大缩小修改编辑及打印出图 |
|
|
|
|
|
|
|
 |
|
|