|
| 仿古建筑宝塔设计施工图 |
[注:所有AotuCAD图纸均可修改编辑及打印出图] |
| 图纸大小:2491KB |
图纸格式:dwg |
制作软件:AotuCAD |
| 添加时间:2011年06月27日 |
下载权限:10个图纸币 |
浏览人数:
次 |
|
|
|
 |
|
|
| 图纸简介: |
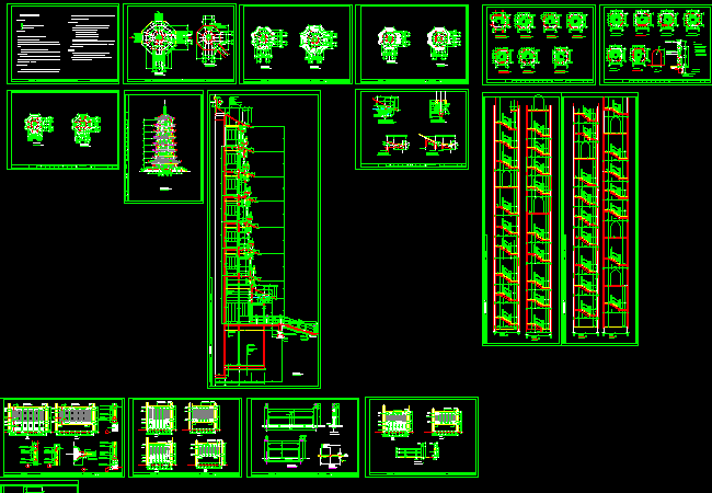
| 本套图纸为仿古建筑宝塔设计施工图,此工程为七层塔,采用钢筋混凝土结构,混凝土屋面板,一层采用青石栏杆,其余各层栏杆采用进口硬木,木装饰斗拱,出檐部分倒钉,木屋面采用亚光黑琉璃瓦,带滴水勾头。这是一套非常不错的古建图纸,供需要的朋友参考! |
预览图:[仅是局部效果预览,详细内容及整套图纸请下载附件查看]
|
| 整套图纸下载 [本图为AotuCAD制作/dwg格式] 注:所有dwg格式图纸均可任意放大缩小修改编辑及打印出图 |
|
|
|
|
|
|
|
 |
|
|