设为首页
|
加入收藏
|
帮助中心
|
站内地图
|
全部
新闻
下载
订绘
供应
求购
专利
技术
标题
内容
录入
买图首页
图纸供应
图纸求购
图纸订绘
技术交易
专利交易
图纸下载
兼职招聘
行业资讯
图纸加密
帮助中心
关键字:
四合院
电气
四合院电气施工图
居住建筑电气
图纸
建筑设计
下载中心
居住建筑电气
文教建筑电气
公共建筑电气
工业建筑电气
商业建筑电气
电气原理
市政电气
您当前位置:
图纸交易网
>>
图纸下载
>>
电气
>>
居住建筑电气
>> 浏览下载
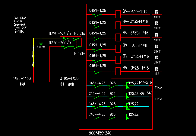
四合院电气施工图
[注:所有AotuCAD图纸均可修改编辑及打印出图]
图纸大小:867KB
图纸格式:dwg
制作软件:AotuCAD
添加时间:2011年06月27日
下载权限:
10
个
图纸币
浏览人数: 次
图纸简介:
四合院电气施工图,简单明了,供参考!
预览图:
[仅是局部效果预览,详细内容及整套图纸请下载附件查看]
整套图纸下载
[本图为AotuCAD制作/dwg格式]
注:所有dwg格式图纸均可任意放大缩小修改编辑及打印出图
下载地址1
(需要
10
个图纸币)
100元=220图纸币
如何获得图纸币?
分享按钮
相关图纸:
·
三效蒸发器图纸
·
仓库图纸
·
12000X3000X3200集装箱生产图纸
·
板框间配电图纸
·
消防水站配电图纸
·
微挖图纸
·
考克斯(全套图纸)
·
ZDY3500近水平定向钻机图纸
·
嘉惠·红山郡景观施工图
·
绿地骊山花城二期(示范区)景观工
相关栏目参考:
相关软件下载:
AutoCAD 2010 简体中文版
(CAD绘图软件) 1.74G
CAD图纸查看器
(可查看DWG格式图纸) 2.37M
WinRAR V3.93 简体中文版
(解压缩软件) 1.41M
网友评论:
推荐图纸
水解酸化池
环境电气照明总图
小区供电外线总平面图
办公区装修电气平面图
低压配电系统原理图
100KVA路灯监控箱变系统图
景观工程电气设计图
小区供电系统设计
热门图纸
运达嘉洲阳光样板间装修8张--陈立坚
某小区规划设计图
一套经典的中式餐厅装修施工图
完整公寓室内施工图带效果图
某小区规划及景观设计
11层住宅完整建筑
某复式套房装修图
某县城开发区设计规划图
某小区规划图
多套样板房装修施工图案例
售楼处装修设计整套图纸
一套详细的家装图纸
别墅室内设计施工图带5张效果图
网站介绍
|
服务条款
|
广告服务
|
网站声明
|
联系我们
|
图纸加密软件
|
Google地图
|
Baidu地图
版权所有:
图纸交易网
Copyright 2007-2019
服务热线:13775238533(本站不卖图只提供交易平台) 在线客服:
地址:江苏省常州市软件园
苏ICP备11049770号