|
| 空压站房建筑结构设计 |
[注:所有AotuCAD图纸均可修改编辑及打印出图] |
| 图纸大小:447KB |
图纸格式:dwg |
制作软件:AotuCAD |
| 添加时间:2011年06月27日 |
下载权限:10个图纸币 |
浏览人数:
次 |
|
|
|
 |
|
|
| 图纸简介: |
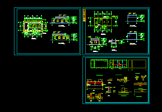
空压站房建筑结构设计,图纸内容包括建筑平、立面图,基础平面布置图、屋面结构平面布置图、节点大样等。 |
预览图:[仅是局部效果预览,详细内容及整套图纸请下载附件查看]
|
| 整套图纸下载 [本图为AotuCAD制作/dwg格式] 注:所有dwg格式图纸均可任意放大缩小修改编辑及打印出图 |
|
|
|
|
|
|
|
 |
|
|