|
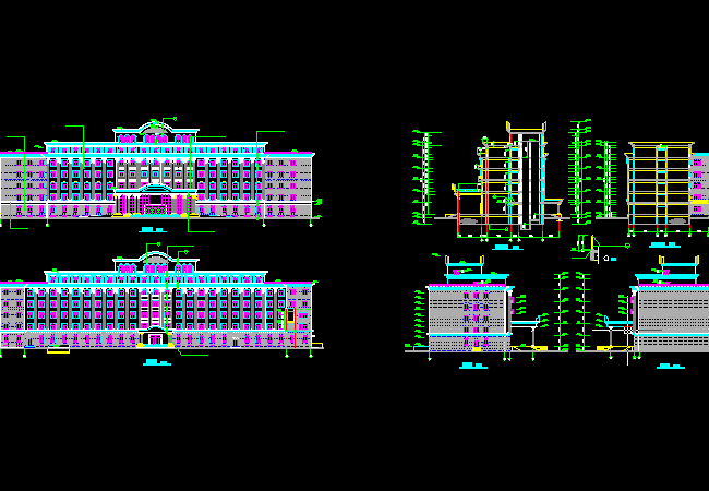
| 六层办公楼建筑 |
[注:所有AotuCAD图纸均可修改编辑及打印出图] |
| 图纸大小:1868KB |
图纸格式:dwg |
制作软件:AotuCAD |
| 添加时间:2011年06月27日 |
下载权限:10个图纸币 |
浏览人数:
次 |
|
|
|
 |
|
|
| 图纸简介: |
| 平屋面坡度为2%,系建筑找坡,材料用防水珍珠岩砌块,起点处40厚。 高低跨屋面排水时,水落管下加设钢筋混凝土水簸箕,位于每层楼的各管道竖井,必须待管道安装完毕后,将预留洞口用钢筋混凝土两次浇捣封闭,或用C20细石混凝土。屋面位于女儿墙转折处,高低屋面转折处,雨水口,阴阳转角等重点防水部位。 |
预览图:[仅是局部效果预览,详细内容及整套图纸请下载附件查看]
|
| 整套图纸下载 [本图为AotuCAD制作/dwg格式] 注:所有dwg格式图纸均可任意放大缩小修改编辑及打印出图 |
|
|
|
|
|
|
|
 |
|
|