咨询:1640400212 合作:33527998
VIP群:25152793
电话:13775238533(7*24小时)
邮箱:maitu@maitu.cc

















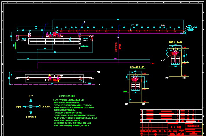
1:主机电动行车、电动机舱行车用于维修船舱主机发动机设备,是船上必不可少的起重设备。
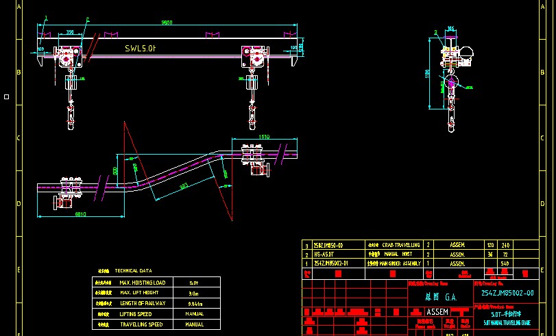
2:各种吨位的手拉行车是船舱内非常实用和便捷的手动设备。船体建造时可节省大量的劳动力,设备维修时的得力助手。
3:电动单轨供应吊又称食品吊,是大型船舶上必不可少的设备。他是船员的生活保障,用于在码头装运船上生活必需品。
4:电动回转吊是快速救助艇的降放装置,在船上用于固定、起升、降放快速救助艇。
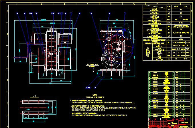
5: 21KN/30KN液压回转救生艇吊兼筏吊,也是船上用于固定、起升、降放快速救助艇的起重设备。他和电动回转吊的不同的是他可以用于筏吊的固定,通过液压回转。在船上没有电的情况下可通过简易的手动装置工作,是船上必不可少的起重设备,它的结构是目前国内外最新颖、最简洁的。
6:救生艇重力倒臂架是船上人员生命的保障,是船在海上航行时,出现事故时船上人员逃命的重要设备。他是用于固定、起升、降放封闭艇的重要起重设备。
7:抛落艇架的作用与重力倒臂架的功能相同,它是根据不同结构的船体设计的。
以上所述图纸已经经过各个船级社的评审和检验。按照该图纸生产的起重设备已经用于南京武家嘴船厂、金陵船厂、舜天船厂、东方重工、镇江船厂、扬州三福船厂、南通启东道达船厂、厦门重工船厂、宜昌船厂的大型货船。图纸结构新颖、成熟,不需再经过设计计算,非常实用。