设为首页
|
加入收藏
|
帮助中心
|
站内地图
|
全部
新闻
下载
订绘
供应
求购
专利
技术
标题
内容
录入
买图首页
图纸供应
图纸求购
图纸订绘
技术交易
专利交易
图纸下载
兼职招聘
行业资讯
图纸加密
帮助中心
关键词:
房地产开发
房地产土地开发
图
图纸
暖通
水
住宅
楼
您当前位置:
图纸交易网
>>
图纸供应
>> 浏览供应
图纸供应推荐
图纸供应热门
联系我们
咨询:
1640400212
合作:33527998
VIP群:25152793
(VIP会员图纸买卖交流加群报ID)
电话:13775238533(7*24小时)
邮箱:maitu@maitu.cc
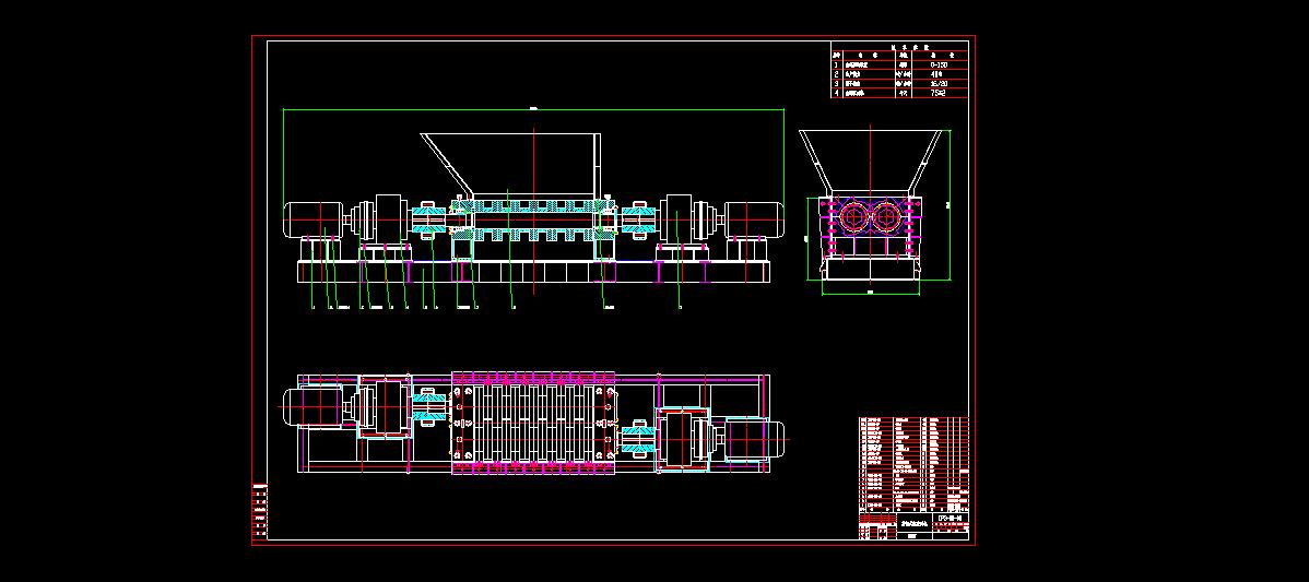
垃圾处理破碎机
图纸类型:
CAD图纸
PCB图纸
原理图
蓝图图纸
CAXA图纸
其它图纸
适用行业:
冶金行业
电力行业
钢铁行业
建材行业
机械行业
粮食行业
食品行业
医疗行业
印染行业
服装行业
化工行业
造纸行业
印刷行业
装饰行业
包装行业
铸造行业
陶瓷行业
烟草行业
制药行业
种植行业
养植行业
其他行业
日期:
所有的信息
昨天以来的信息
二天以来的信息
十天以来的信息
一个月内的信息
三个月内的信息
一年内的信息
图纸搜索:
图纸类型:其它图纸
适用行业:机械行业
刊登时间:2016年11月18日
图纸价格:可面议
有 效 期:长期
地 区:江苏省 ---
发布图纸供应信息
查看联系方式
联 系 人:
登录后查看
办公电话:
登录后查看
手机号码:
登录后查看
Q Q:
登录后查看
电子邮箱:
登录后查看
图纸介绍
垃圾处理破碎机
网站介绍
|
服务条款
|
广告服务
|
网站声明
|
联系我们
|
图纸加密软件
|
Google地图
|
Baidu地图
版权所有:
图纸交易网
Copyright 2007-2019
服务热线:13775238533(本站不卖图只提供交易平台) 在线客服:
地址:江苏省常州市软件园
苏ICP备11049770号