MJOLK住宅改造设计 具有日式风格
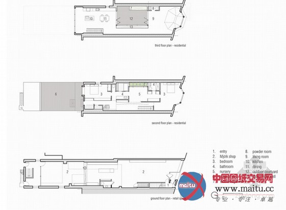
一座1889年的传统的商展大年夜楼(W.H. Ives Tailor Building)改革而来Mjolk室第,建筑有着古典式的外立面而内部的改革却十分现代简约。建筑的首层被从头改革成设计商铺及画廊,二三层为业主的室第。全部房间以原木色家具为主,色采平平素雅,整体感触感染很是具有日式气焰。
关头词:MJOLK室第 室第改革 室第设计
MJOLK室第改革设计 具有日式气焰
MJOLK室第改革设计 具有日式气焰
MJOLK室第改革设计 具有日式气焰
MJOLK室第改革设计 具有日式气焰
MJOLK室第改革设计 具有日式气焰
MJOLK室第改革设计 具有日式气焰
MJOLK室第改革设计 具有日式气焰
MJOLK室第改革设计 具有日式气焰
MJOLK室第改革设计 具有日式气焰
MJOLK室第改革设计 具有日式气焰
MJOLK室第改革设计 具有日式气焰
MJOLK室第改革设计 具有日式气焰
















返回顶部