“折中主义建筑风格”意大利主题餐厅设计
“La Tratto” Santa Lucia是一家意大年夜利餐厅,以“折中主义建筑气焰”为主题,餐厅位于尤卡坦半岛梅里达市中间一处名为Santa Lucia公园的处所,这一具有殖平易近期间建筑气焰的汗青公园是本地国人作为进行传统歌颂跳舞的文化传承处所。对设计团队来讲,若何将传统的建筑气焰和蔼概化的殖平易近地建筑元素有机结归并揭示出具有现代感的餐馆设计气焰,创作发现一个令人愉悦的用餐环境是任务的重点。
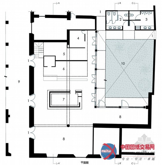
项目名称:La Tratto Santa Lucía餐厅(La Tratto Santa Lucía)
建筑师: DOX Arquitectos建筑事务所
项目地址:墨西哥,尤卡坦,梅里达
项目面积:383㎡
项目时候:2013年
La Tratto Santa Lucia餐厅吧台采取了桃花心木和白色大年夜理石设计:桃花心木隔断距离的大年夜酒柜吊挂在屋顶上,不合的格栅蕴躲着各类酒品,下方的大年夜理石吧台精美而精练;吧台对面是一个开放式厨房,与现代感实足的吧台设计构成光鲜对比,这里几近全数采取原色木设计。
关头词:意大年夜利餐厅 主题餐厅 餐厅设计
“折中主义建筑气焰”意大年夜利主题餐厅设计
“折中主义建筑气焰”意大年夜利主题餐厅设计
“折中主义建筑气焰”意大年夜利主题餐厅设计
“折中主义建筑气焰”意大年夜利主题餐厅设计
“折中主义建筑气焰”意大年夜利主题餐厅设计
“折中主义建筑气焰”意大年夜利主题餐厅设计
“折中主义建筑气焰”意大年夜利主题餐厅设计
“折中主义建筑气焰”意大年夜利主题餐厅设计
“折中主义建筑气焰”意大年夜利主题餐厅设计
“折中主义建筑气焰”意大年夜利主题餐厅设计
“折中主义建筑气焰”意大年夜利主题餐厅设计
“折中主义建筑气焰”意大年夜利主题餐厅设计
“折中主义建筑气焰”意大年夜利主题餐厅设计


















返回顶部