建筑复合体 葡萄牙埃武拉Ecork酒店设计
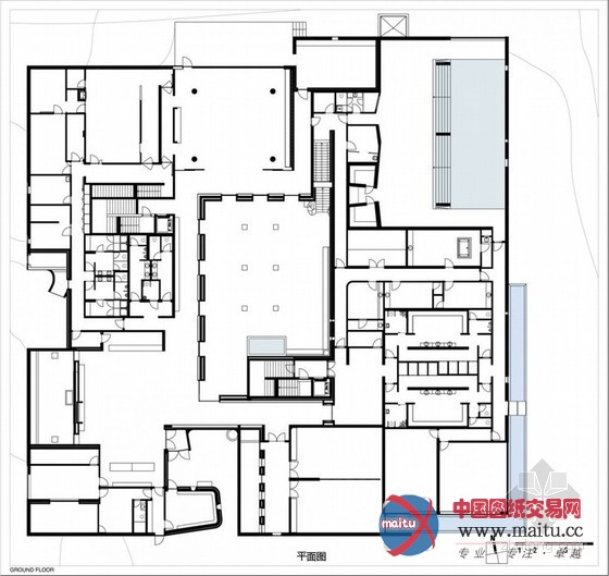
Ecork是位于葡萄牙埃武拉的一家酒店,具有水疗中间、健身俱乐部、健身房、餐馆、酒吧、会议室、室外泅水池图和56间房间。 计灵感来自中世纪村落阿连特茹,它周边首要建筑复合体(城堡)及几间白色建筑。所有的办事和酒店举措措施整合到单一建筑当中,腾出外面的地盘。这座世界上第一家利用复合软木建造的旅店Ecork Hotel位于葡萄牙埃武拉城市外,包含一家复合软木建造的餐厅和56间彼此邻接的套房。
受本地和阿拉伯建筑影响,团队成立一个独栋并有小启齿与外部相连,上面覆有软木饰面,可收受领受,包管建筑的保温。环绕一个巨大年夜的天井建筑,布局如斯设计可以获得侧风和空气畅通的优势,因此降落功耗至最低。为确保不反对阿连特茹村景不雅视野,室外泳池和位于屋顶的酒吧。所有56间客房都是套房。房间分离在橄榄树之间,这些路径被理解为一系列抽象的体量和概况,粉刷成白色。
关头词:Ecork酒店 埃武拉酒店 酒店设计
建筑复合体 葡萄牙埃武拉Ecork酒店设计
建筑复合体 葡萄牙埃武拉Ecork酒店设计
建筑复合体 葡萄牙埃武拉Ecork酒店设计
建筑复合体 葡萄牙埃武拉Ecork酒店设计
建筑复合体 葡萄牙埃武拉Ecork酒店设计
建筑复合体 葡萄牙埃武拉Ecork酒店设计
建筑复合体 葡萄牙埃武拉Ecork酒店设计
建筑复合体 葡萄牙埃武拉Ecork酒店设计
建筑复合体 葡萄牙埃武拉Ecork酒店设计
建筑复合体 葡萄牙埃武拉Ecork酒店设计
建筑复合体 葡萄牙埃武拉Ecork酒店设计
建筑复合体 葡萄牙埃武拉Ecork酒店设计
建筑复合体 葡萄牙埃武拉Ecork酒店设计
建筑复合体 葡萄牙埃武拉Ecork酒店设计



















返回顶部