SuperLimão设计的巴西Estar Móveis商品店
摘要:坐落在一个街角处的建筑里,这家商铺应当兼具躲品的期间性和品牌的新说话。它在市场中已存在超越60年,而在这个新任务中,它需要寻觅一种新的审美说话印刻在产品和建筑上。
SuperLimão设计的巴西Estar Móveis商品店
建筑设计:SuperLimão工作室
项目地址:巴西 圣保罗
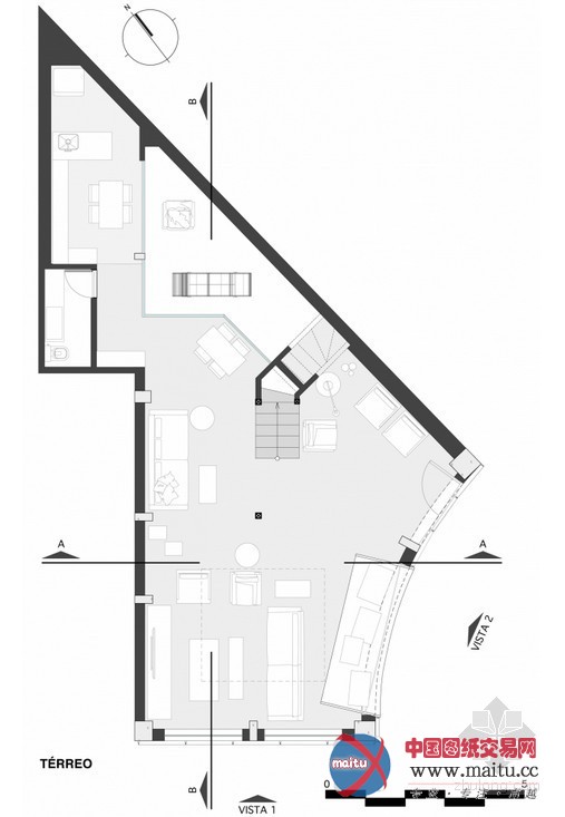
建筑面积:250平方米
项目日期:2013年
图片来历:Maira Acayaba
是以,经由过程近况阐发,需要在弧线形广场后表示出建筑的消解性,同时还应阐发产品摆设的需要。建筑物有10扇小窗,建筑师经由过程研究,决定在外立面上借助一个辅助的金属布局,做一个较着的开敞,使行人和颠末的驾车者一目了然。蜂巢激起了建筑师在里立面上做成六边形,如许的外形可以或许更好的解决建筑平面和弧形基地。建筑概况兼有不透明和半透明的措置,使直线和曲线之间的夹角产生变换。同时,立面开敞处若隐若现的措置也能引来良多立足的目光。在商铺的内部,有一个用来输送货色的门,不克不及够经由过程楼梯输送的大年夜型货色可以从这里直接吊到楼上。石瓦都不精加工的***露在外,照明也是也利用之前的机关固定,以便为商铺带来一个最矫捷的产品展览空间。旧砖仿佛是新旧材质之间的对话。塑料成品艺术家Felipe Morozini遭到奇特的建筑方案的激起,为ESTAR GABRIEL的物品、家具及艺术指了然一条创作发现性的成长标的目标。为了使摆设室更人道化,商铺的负责人建议创作发现一个朴素和诙谐的空间来弥补汗青、怀旧、感情和在家的感触感染,以使每个客人都找到家的感触感染。
SuperLimão设计的巴西Estar Móveis商品店
SuperLimão设计的巴西Estar Móveis商品店
SuperLimão设计的巴西Estar Móveis商品店
SuperLimão设计的巴西Estar Móveis商品店
SuperLimão设计的巴西Estar Móveis商品店
SuperLimão设计的巴西Estar Móveis商品店
SuperLimão设计的巴西Estar Móveis商品店
SuperLimão设计的巴西Estar Móveis商品店
SuperLimão设计的巴西Estar Móveis商品店
SuperLimão设计的巴西Estar Móveis商品店
SuperLimão设计的巴西Estar Móveis商品店
SuperLimão设计的巴西Estar Móveis商品店
SuperLimão设计的巴西Estar Móveis商品店
SuperLimão设计的巴西Estar Móveis商品店
SuperLimão设计的巴西Estar Móveis商品店
SuperLimão设计的巴西Estar Móveis商品店
SuperLimão设计的巴西Estar Móveis商品店
SuperLimão设计的巴西Estar Móveis商品店
SuperLimão设计的巴西Estar Móveis商品店
SuperLimão设计的巴西Estar Móveis商品店
译者:筑龙网 DING

























返回顶部