曼谷Blocs 77公寓Green Camouflage花园景观
摘要:绿色空间从程度舒展到垂直。地面层安好的水池开启了绿色空间的前奏,立面上安插了绿化植栽,空中花圃也种满了植物。设计师化弊为利,为居平易近和城市带来斑斓环境。
景不雅设计:Shma Company Limited
景不雅面积:5244平方米
景不雅时候:2008年
项目地址:泰国 曼谷
图片来历:Shma Company Limited
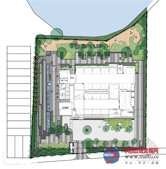
和其它公寓景不雅项目一样,Green Camouflage花圃也是为了给居平易近供给杰出的糊口环境而设计的。这个梦幻般的花圃位于泰国曼谷最富贵的Blocs 77公寓中,5244平方米的用地容纳了467户室第单位。
公寓周边有良多购物商场,每天都面对着闹热热烈繁华的街道,而厥后方则是安好的运河和传统平易近居大年夜院。因为用地密度较高,项目需要在周围留出6米的消防通道和一些地面泊车场,这意味着地面层需要有较多的硬质展装。而公寓楼的外饰面会造成城市热岛效应和反射炫光。是以设计师在地面和公寓内部需尽可能增加一些绿色空间。
绿色空间从程度舒展到垂直。地面层安好的水池开启了绿色空间的前奏,立面上安插了绿化植栽,空中花圃也种满了植物。设计师化弊为利,为居平易近和城市带来斑斓环境。
因为公寓位置接近运河,并且,之前城市打算中将可渗入性材质变成硬质概况的步履,导致了雨水排水坚苦,增加了地表径流。为体味决这个标题问题,设计师将大年夜部门莳植区进步到距离地面450mm之上,如许避免了球根植物与地下水直接接触或暴雨期间沉没在水中,这些高台花盆同时也构成了美好的室外空间。
译者:筑龙网 饭团小组
























返回顶部