Atelier Dreiseitl设计的德国温南登Arkadie 小镇
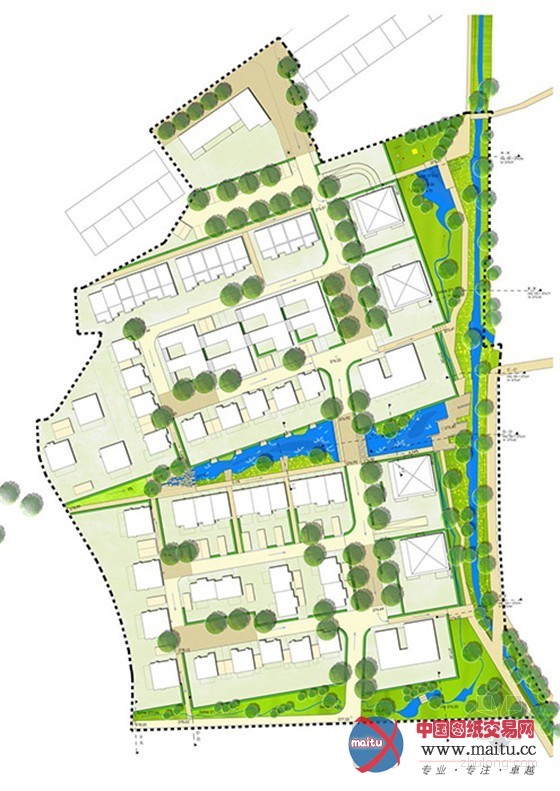
摘要:这是Atelier Dreiseitl景不雅公司在德国温南登Arkadie小镇设计建造的一个财产再生项目。距离比来的火车站步行只需5分钟,通往镇中间的交通十分便捷。该项目此刻成为全球最具可延续性的邻里景不雅,为本地居平易近和旅客供给了新的宜居环境。
方案设计:Atelier Dreiseitl
方案面积:3.4公顷
建筑时候:2011
项目地址:德国 温南登
图片来历:Dreiseitl
这是Atelier Dreiseitl景不雅公司在德国温南登Arkadie小镇设计建造的一个财产再生项目。距离比来的火车站步行只需5分钟,通往镇中间的交通十分便捷。该项目此刻成为全球最具可延续性的邻里景不雅,为本地居平易近和旅客供给了新的宜居环境,本地的灌木也可用于产生能量。同化型的建筑,地中海式风情,Arkadie小镇奇特的景不雅培养了这座布满凝集力的社区。这座小镇水资本丰硕,使得小镇具有奇特魅力,街角的小广场是居平易近堆积聊天之所,孩子们也会在此游乐。清爽天然的莳植、令人赞叹的湖泊、低耗能可延续的建筑、友爱的社区街道、公私空间的瓜代、安然的糊口环境、丰硕的文娱休闲举措措施,无障碍交通,等等一切都描画了一个童话般的小镇。
译者:筑龙网 温冷僻秋





















返回顶部