设为首页 | 加入收藏 | 帮助中心 | 站内地图 |
  • 全部
  • 新闻
  • 下载
  • 订绘
  • 供应
  • 求购
  • 专利
  • 技术
关键词: 商住楼 某别墅效果图

新闻中心

您当前位置:图纸交易网 >> 行业资讯 >> 室内设计 >> 浏览新闻

北欧风来袭 瑞典精致小公寓设计欣赏

2013/1/30 中国图纸交易网 MaiTu.CC 【字体:

关键字:室内动态 室内设计

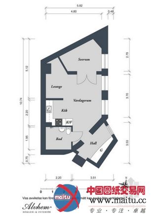
   北欧风来袭,瑞典精致小公寓计划浏览,瑞典Linnéstaden有许多精致公寓,一些富有优雅装潢细节,其他展现出雄厚的计划线条。当天为你介绍的这间公寓,内部色采多样热和,当代家具亦保留了一些翻修原始的计划陈迹,开放式客堂与厨房被小型门厅隔开。隐躲的内置橱柜隔尽了略显混乱的蕴躲空间。临近窗台的处所设立了小型书桌,简略夸姣......

 

北欧风来袭 瑞典精致小公寓设计欣赏

 

北欧风来袭 瑞典精致小公寓设计欣赏

 

北欧风来袭 瑞典精致小公寓设计欣赏

 

北欧风来袭 瑞典精致小公寓设计欣赏

 

北欧风来袭 瑞典精致小公寓设计欣赏

 

北欧风来袭 瑞典精致小公寓设计欣赏

 

北欧风来袭 瑞典精致小公寓设计欣赏

 

北欧风来袭 瑞典精致小公寓设计欣赏

 

北欧风来袭 瑞典精致小公寓设计欣赏

 

北欧风来袭 瑞典精致小公寓设计欣赏

 

北欧风来袭 瑞典精致小公寓设计欣赏

 

北欧风来袭 瑞典精致小公寓设计欣赏

 

北欧风来袭 瑞典精致小公寓设计欣赏

 

北欧风来袭 瑞典精致小公寓设计欣赏

 

北欧风来袭 瑞典精致小公寓设计欣赏

 

北欧风来袭 瑞典精致小公寓设计欣赏

 

北欧风来袭 瑞典精致小公寓设计欣赏

 

北欧风来袭 瑞典精致小公寓设计欣赏

 


 

分享按钮