咨询:1640400212 合作:33527998
VIP群:25152793
电话:13775238533(7*24小时)
邮箱:maitu@maitu.cc
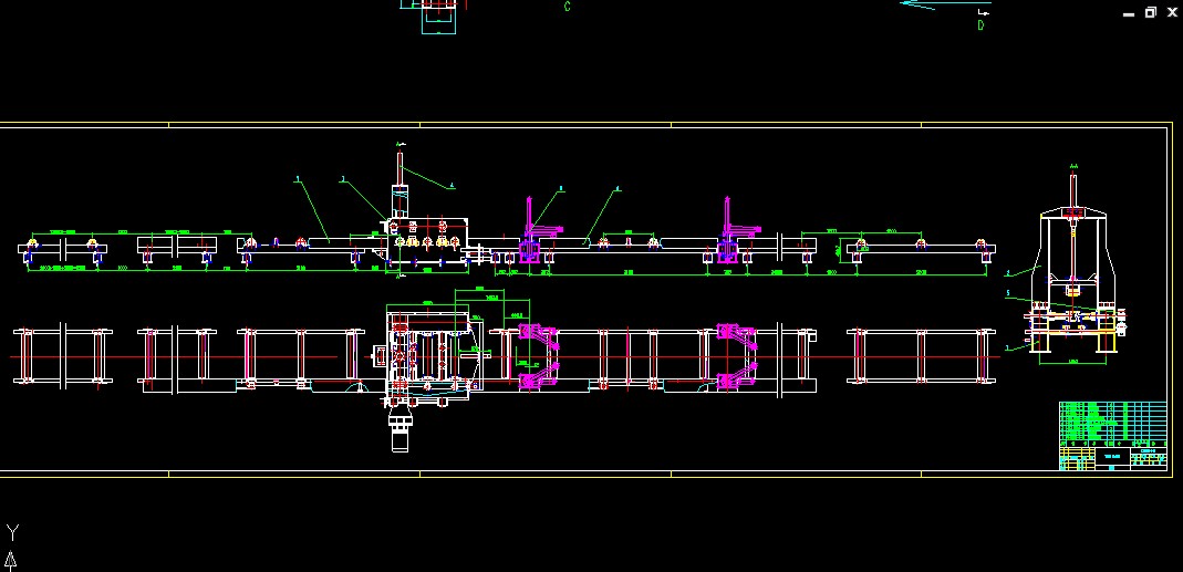
HG-1500ⅠH型钢组立机(手工点焊)
1、技术性能参数
适用尺寸:幅板高度: 200-1500mm
幅板厚度: 6-32mm 幅板长度:4000-15000mm
翼缘板宽度:200-600mm
翼缘板厚度:6-40mm 翼缘板长度:4000-15000mm
组立速度: 500-6000mm/min
输入辊道长度: 12000mm
输出辊道长度: 12000mm
腹板定位: 减速器联杆连动
翼板夹持: 液压缸迫紧
变截面最大坡度: 15°
控 制: 交流变频调速,附程序控制
速 度: 无极调速
机械功率: 8KW(电焊机功率另计)
电 源: AC 380V 50HZ 3相
外形尺寸(长×宽×高): 3900×2600×3920mm
2、性能特点
HG-1500IH型钢组立机,可实现夹紧对中机构同步夹紧同步对中。能确保规定范围内的不同厚度的幅板、不同宽窄的翼板定位,同步对中准确,无须每次调整;可根据用户要求设置成变截面H型钢的自动组立。液压系统设有精滤器,确保电磁阀长期可靠运行。
3、供货范围组成单元
A:组立机本体 含:本体,主传动电机减速机,液压系统(液压泵站、油管、液压缸等)。
B:机械手总成 含:2组同步夹紧系统,翼板夹紧系统幅板对中系统。
C:输入辊道 含:座架,辊道。
D:输出辊道 含:座架,辊道。
E:电控总成 含:电器柜,变频电机,减速箱等 。
F:备品备件 含:按钮开关3只,密封垫10只,熔芯4A、6A各3只。
4、整套设备工具及易损件
A:通用活手扳 2只
B:内六角扳手 8mm-12mm 3只
C:液压油封 1套
D:主机备用辊道 1只
E:备用链条 1根
5、技术文件
A:整机使用说明书 1份
B:部件使用说明书(变频器、液压站使用说明书) 1份
C:整机技术规范 1份
D:电气图 1份
E:液压原理图 1份
F:装箱单 1份
G:合格证 1份
H:整机基础图 1份(合同生效发用户)
6、经济效益分析
该机若辅以900翻转架,附架及半龙门行车对一块翼板与一块腹板花焊组立成“┴”形钢,翻转成“人”,然后与另一块翼板花焊组立H型钢,能自身不求助其他设备单独完成H型钢的组立工作。节省了大量的劳动力,降低了操作工人的劳动强度,通过程控预置了H型钢的组立速度。H型钢其速度可达每班产300米-400米的H型钢,它代替了进口设备,为国家节省大量外汇,而且其组立质量好,精度高,大大的提高了国产设备的社会形象。
7、验收标准
引用我公司企标Q/320222-1996〈H型钢自动焊接成套设备〉
冶标YB3301-92〈焊接H型钢〉