Bedaux de Brouwer设计的荷兰圆柱体公寓楼
计划者:Bedaux de Brouwer Architecten
项目修建师:Jacq. de Brouwer
团队成员:Ingeborg Dankers
布局参谋:Adviesbureau S. v. Boxtel – Tilburg
制作者: Aannemersbedrijf Riebouw B.V.
项目地点:荷兰 蒂尔堡
业主:Interfour B.V., Berkel-Enschot
总修建面积:576平方米
修建容积:1853立方米
开工时候:2012年3月
完工时候:2011年3月
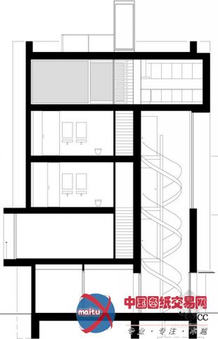
荷兰修建事件所Bedaux de Brouwer计划的一栋五层公寓楼,位于荷兰蒂尔堡市,修建形体为一个巨大年夜的圆柱体,向外伸出巨大年夜的窗户,用黑色的釉面墙砖贴面。修建名为Duikklok,内有两个公寓。每个公寓都有本身的专属螺旋形楼梯,并经由过程楼梯与共享大年夜厅和底下车库相连。在修建顶部有一个屋顶露台。

























返回顶部