设为首页 | 加入收藏 | 帮助中心 | 站内地图 |
  • 全部
  • 新闻
  • 下载
  • 订绘
  • 供应
  • 求购
  • 专利
  • 技术
关键词: 规划 钢筋混泥土结构 机电

新闻中心

您当前位置:图纸交易网 >> 行业资讯 >> 建筑设计 >> 浏览新闻

Andre Kikoski Architect设计的美国Eaglebrook学校艺术中心

2011/10/11 中国图纸交易网 MaiTu.CC 【字体:

关键字:建筑动态 建筑

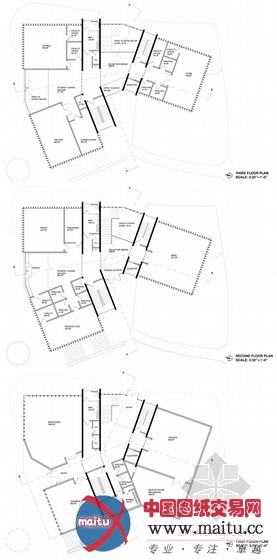
Andre Kikoski Architect设计的美国Eaglebrook学校艺术中心

    Andre Kikoski Architect 事件所计划的位于美国Eaglebrook 黉舍的艺术中心。

 

Andre Kikoski Architect设计的美国Eaglebrook学校艺术中心

 

 

Andre Kikoski Architect设计的美国Eaglebrook学校艺术中心

 

 

Andre Kikoski Architect设计的美国Eaglebrook学校艺术中心

 

 

Andre Kikoski Architect设计的美国Eaglebrook学校艺术中心

 

Andre Kikoski Architect设计的美国Eaglebrook学校艺术中心

 

 

分享按钮