松田哉设计的日本Port住宅
修建计划:松田哉(Design nico Architects)
项目地点:日本 傅刚
完成时候:2011年6月
修建布局:钢布局
园地面积:323.13平方米
基底面积:164.91平方米
修建面积:256.47平方米
布局计划:哲清水(Shimizu Architects)
拍照:藤井浩二 ( Nacasa&Partners Inc )
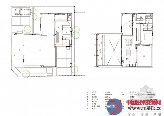
松田哉(Design nico Architects)计划的日本Port室第。园地位于一个室第区的角落,周边近两年增加了工厂、堆栈和诸多高层等修建。园地距离福冈市中心仅一站地的路程,临街,交通流量很大年夜。客户希看新的室第同时可以或许展现一些铝制产品的功效。
计划师希看计划一个此地区的新风景,port 室第首层是一个展厅,展现修建产品,另有事情间和日式的房间及室第的进口;二层有一个巨大年夜的中庭,它从一层耽误到室第空间,考虑到住户的糊口体例,计划未将商业空间与室第完整分离,而是成心识地畅通领悟。计划师在首层计划了一个凸起的门廊,落地大年夜窗,如许行人可以便利看到室内的展品,并感触感染室内物品。门廊前部和上半部镂空,阳光可以顺利的进进室内。















返回顶部