设为首页
|
加入收藏
|
帮助中心
|
站内地图
|
全部
新闻
下载
订绘
供应
求购
专利
技术
标题
内容
录入
买图首页
图纸供应
图纸求购
图纸订绘
技术交易
专利交易
图纸下载
兼职招聘
行业资讯
图纸加密
帮助中心
关键字:
设防烈度
素材
桥梁结构荷载
穹顶钢结构
圆形蓄水池设计图
图纸下载
景观套图
绿化施工
景观规划
道路地面铺装
效果图
景观素材
建筑相关
水电相关
您当前位置:
图纸交易网
>>
图纸下载
>>
园林工程
>>
景观素材
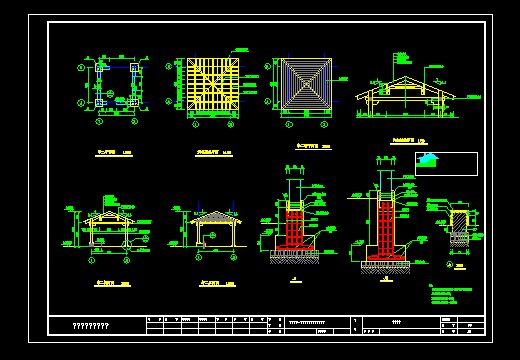
亭子大样施工图纸
图纸摘要:本图纸包括亭平面图、天花镜像平面、亭二顶平面图、构架结构详面等,供大家参考使用!...
图纸大小:88KB
更新时间:2011-06-27
人下载
图纸归类 | 景观素材
各种围墙施工图集(8张)
图纸摘要:各种围墙施工图,共8张图纸,供需要的同行参考!...
图纸大小:1308KB
更新时间:2011-06-27
人下载
图纸归类 | 景观素材
水幕景墙木栈桥花钵等小品施工图
图纸摘要:苏州某小区中心景区的施工图。主要构筑物水幕景墙(水帘门),含节点大样,结构配筋。为保证水幕效果...
图纸大小:954KB
更新时间:2011-06-27
人下载
图纸归类 | 景观素材
围墙栏杆cad合集
图纸摘要:包括很多围墙栏杆工程实例,供参考!...
图纸大小:3627KB
更新时间:2011-06-27
人下载
图纸归类 | 景观素材
园林景观设计植被CAD素材
图纸摘要:不错的素材,供下载使用!...
图纸大小:1183KB
更新时间:2011-06-27
人下载
图纸归类 | 景观素材
区围墙施工详图
图纸摘要:三个围墙方案,可以用来立即用...
图纸大小:110KB
更新时间:2011-06-27
人下载
图纸归类 | 景观素材
园林设计常用廊架cad图纸
图纸摘要:不错的图纸,供设计人员参考!...
图纸大小:2751KB
更新时间:2011-06-27
人下载
图纸归类 | 景观素材
共 67 张 页次:
7
/7页 10 张/页
首页
上一页
下一页 尾页 转到:
第1页
第2页
第3页
第4页
第5页
第6页
第7页
下载排行
本日
本周
微模块机房平面布局图(含3套方案
门禁系统设计图
无线对讲系统设计图
弱电设备大样图
35kV变配电所系统设计图
膜式壁冷渣机图纸
3500t原油运输船A
公安局办公大楼设计图
固井压裂用柱塞泵图纸
3平方盘管换热器
纤板厂鸟瞰图
抽油光杆密封盒
采油井口装置(24.5MPa)
液压破碎锤成套图纸
推荐图纸
水解酸化池
环境电气照明总图
小区供电外线总平面图
办公区装修电气平面图
低压配电系统原理图
100KVA路灯监控箱变系统图
景观工程电气设计图
小区供电系统设计
热门图纸
别墅室内设计施工图带5张效果图
完整的KTV包间设计图纸
别墅室内装修施工图效果图
售楼处装修设计整套图纸
多套样板房装修施工图案例
120平米家居设计装修图
二居室装修平面布置图
某复式套房装修图
一套经典的中式餐厅装修施工图
私人住宅全套装修施工图
某小区规划设计图
一套花园复式房屋装饰施工图带效果图
某公园总平面图规划
网站介绍
|
服务条款
|
广告服务
|
网站声明
|
联系我们
|
图纸加密软件
|
Google地图
|
Baidu地图
版权所有:
图纸交易网
Copyright 2007-2019
服务热线:13775238533(本站不卖图只提供交易平台) 在线客服:
地址:江苏省常州市软件园
苏ICP备11049770号