设为首页
|
加入收藏
|
帮助中心
|
站内地图
|
全部
新闻
下载
订绘
供应
求购
专利
技术
标题
内容
录入
买图首页
图纸供应
图纸求购
图纸订绘
技术交易
专利交易
图纸下载
兼职招聘
行业资讯
图纸加密
帮助中心
关键字:
房地产运营管理
市
9x11
河南土地整治
路桥动态
图纸下载
电站厂房
大坝堤防
桥梁隧洞
引调水工程
您当前位置:
图纸交易网
>>
图纸下载
>>
水利工程
>>
电站厂房
工作闸门结构图
图纸摘要:图中尺寸单位除钢材细部结构图以mm计,其余均以厘米计。将闸按图示分割为3段,进行现场整合。P止水...
图纸大小:820KB
更新时间:2011-06-27
人下载
图纸归类 | 电站厂房
节堤航运发电枢纽工程船闸布置图
图纸摘要:船闸分散输水可研设计阶段,节堤航运发电枢纽工程船闸布置图。图中高程采用大坝高程系,高程单位以...
图纸大小:337KB
更新时间:2011-06-27
人下载
图纸归类 | 电站厂房
岸边取水泵站结构图
图纸摘要:本工程建筑耐久年限为50~100年,建筑物火灾危险性类别为丁类,建筑物耐火等级为二级,结构类型:主厂...
图纸大小:776KB
更新时间:2011-06-27
人下载
图纸归类 | 电站厂房
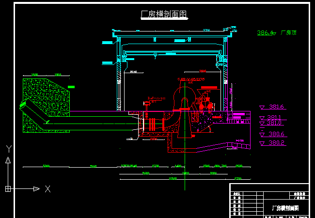
厂房横剖面设计图
图纸摘要:本图适合小型混流式发电机组,欢迎指点评价!...
图纸大小:57KB
更新时间:2011-06-27
人下载
图纸归类 | 电站厂房
渠道小电站全套施工图
图纸摘要:本套图共三张,一个渠道小电站,装机1000KW,机组基本参数,水轮机:型号:CJA475-W-80/1x8额定水头:Hr...
图纸大小:260KB
更新时间:2011-06-27
人下载
图纸归类 | 电站厂房
小水电站水工设计图纸
图纸摘要:包括总体布置图、挡水建筑物、泄洪建筑物、发电引水系统、厂区建筑物等详细图纸,大家多多指教,欢...
图纸大小:3081KB
更新时间:2011-06-27
人下载
图纸归类 | 电站厂房
孔雀滩水电站投标文件
图纸摘要:一期子围堰戗堤高程为217.3m,为便于土方设备施工和加快戗堤进占速度,应随着戗堤的推进及时在戗堤...
图纸大小:5370KB
更新时间:2011-06-27
人下载
图纸归类 | 电站厂房
方形蓄水池设计
图纸摘要:本套图纸为方形蓄水池设计图,本结构的水池池顶及池壁外均考虑覆土,池顶覆土总厚度为500mm,根据使...
图纸大小:238KB
更新时间:2011-06-27
人下载
图纸归类 | 电站厂房
水电站砂石系统皮带机标准设计图
图纸摘要:本图为某水电站砂石系统皮带机标准设计图,供参考!...
图纸大小:3595KB
更新时间:2011-06-27
人下载
图纸归类 | 电站厂房
50方蓄水池设计图
图纸摘要:不错的图纸,供参考!...
图纸大小:151KB
更新时间:2011-06-27
人下载
图纸归类 | 电站厂房
共 148 张 页次:
3
/15页 10 张/页
首页
上一页
下一页
尾页
转到:
第1页
第2页
第3页
第4页
第5页
第6页
第7页
第8页
第9页
第10页
第11页
第12页
第13页
第14页
第15页
下载排行
本日
本周
膜式壁冷渣机图纸
3500t原油运输船A
硫化黑废水生产大苏打工艺包设计
蒸发器工艺包设计
三效蒸发器图纸
仓库图纸
生产硫化黑废水蒸发产品氯化钠和
公安局办公大楼设计图
固井压裂用柱塞泵图纸
3平方盘管换热器
纤板厂鸟瞰图
采油井口装置(24.5MPa)
液压破碎锤成套图纸
水泵房平面和水池剖面图(223KB,d
推荐图纸
水解酸化池
环境电气照明总图
小区供电外线总平面图
办公区装修电气平面图
低压配电系统原理图
100KVA路灯监控箱变系统图
景观工程电气设计图
小区供电系统设计
热门图纸
运达嘉洲阳光样板间装修8张--陈立坚
小区多层住宅建筑
120平米家居设计装修图
11层住宅完整建筑
某小区规划设计图
完整公寓室内施工图带效果图
扬小姐雅居装修图
办公室平面图
一套花园复式房屋装饰施工图带效果图
32层住宅建筑施工图
40平米公寓装修设计图
一套经典的中式餐厅装修施工图
某复式套房装修图
网站介绍
|
服务条款
|
广告服务
|
网站声明
|
联系我们
|
图纸加密软件
|
Google地图
|
Baidu地图
版权所有:
图纸交易网
Copyright 2007-2019
服务热线:13775238533(本站不卖图只提供交易平台) 在线客服:
地址:江苏省常州市软件园
苏ICP备11049770号