打印本文 打印本文  关闭窗口 关闭窗口  
羽根木公园住宅 日本坂茂建筑设计
作者:MaiTu.CC  文章来源:中国图纸交易网  点击数 0  更新时间:2011/7/18  文章录入:admin


    比来,坂茂修建计划完成了“羽根木公园室第”项目,这座独立别墅位于日本东京。
    奇特的修建形状让大年夜部门空间得以优雅的向室外睁开,并将一系列室内元素转化成通风优良,充满新颖氛围的天然寓所。空中楼阁的功效布局将私密的寝室隐躲在高度尝试性的大众地区中。

    修建师在临街进口处计划了一道由钢索围合的屏风,上面笼盖了一层攀爬植物,与周边的都会硬景不雅构成了光鲜对比。这道樊篱隔绝了来自街道的视野,保重了首层房间的私密性。从修建底层开端,修建师鼓动鼓励栖身者从开放的锯齿形楼梯上攀登到夹层和可以通到儿童房的平台上。颠末狭窄的过道以后,就来到了一间双层通高的房间中,内里设置了两扇巨大年夜的落地窗,可以不雅赏到室外美景。

    临街立面的窗户被一个垂直的曲线墙界定,这面墙制作了一个四分之一圆形的屋顶。一个程度的长方形条带窗分别了全部立面布局,条窗上安装了可以堆叠、隐躲的滑动玻璃窗,可以或许为餐厅供应优良的通风。厨房中的一些须要设备都蕴躲在钢制橱柜中。修建后背被一个垂直墙面和斜屋顶围困。高出全部别量的天花板从曲折的形态慢慢转变成线脾气势。



(左)起居空间和通往夹层的楼梯;(右)从夹层往下看起居空间 

(左)从一层走廊看起居空间;(右)从一层走廊看通往二层的楼梯 
餐厅进口 

厨房 + 东侧朝向餐厅 
被曲线墙围困的餐厅 
餐厅西侧景不雅 
夜景 
夜景 

总平面图 
总平面图


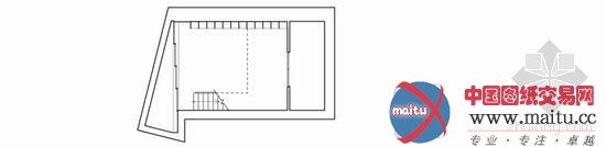
平面图 level 0 
平面图 level 0


平面图  level 1 
平面图  level 1


平面图 level 2 
平面图 level 2


剖面图 
剖面图


剖轴测图 
剖轴测图


过程计划草图 
过程计划草图


过程平面草图 
过程平面草图


屋顶布局草图 
屋顶布局草图